HERITAGE PROJECTS


LYNEN TROY UNITED CHURCH

We had the honour of replacing the Cupola and Belfry atop of this 150 year old Bell Tower. This tower was in dire need of repairs to bring it back to life, and the bell brought down to compete the repairs. The tower was completely gutted inside and given an entirely new framed steel roof, interior structural support and full aluminum louver / window opening replacement construction to let continue to stand the test of time.

It was truly our pleasure, so much so we’d love to share it with you!

View of a brick church with large arched stained glass window and a clock tower with a green roof, surrounded by bushes and a sidewalk.
An old black and white photograph of a church with a tall steeple, surrounded by leafless trees.

BUILT: 1870

TOWER REPAIRS: 2025


A historic brick church with arched stained glass windows, a tall steeple, and a leafless tree in front, under a clear blue sky.
Black and white photograph of the Lynden First United church, showing a small brick building with a green dome, tall arched windows, and a surrounding tree. The second image is an old sepia photograph of the church's exterior, showing a brick structure with a tall clock tower and leafless trees in front.

OUR INITIAL SITE VISIT INVOLVED SENDING UP A DRONE AND A WALKTHROUGH TO INVESTIGATE

THE INITIAL INVESTIGATION GAVE US A PRETTY GOOD IDEA OF WHAT WE WERE GETTING INTO, THERE HAD BEEN A LEAK FOR QUITE SOME TIME, SIGNIFICANT WATER DAMAGE HAD ROTTED A FAIR BIT OF THE STRUCTURAL TIMBER. WE COULD SEE THE BELL NO LONGER HAD A SOLID FOUNDATION AND WAS SINKING INTO THE EXISTING FLAT ROOF. WE BROUGHT IN A BOOM TO INVESTIGATE THE TOP OF THE TOWER, CUPOLA AND BELFRY.

A white utility truck with orange lights parked on the side of a two-lane road near a church with brick walls and tall arched windows. The road has a light dusting of snow, and the sky is partly cloudy.
A cherry picker lift on a flatbed truck parked beside a brick church with arched windows and a steeple in a suburban neighborhood.

WHAT WE FOUND WAS AS WE SUSPECTED, WE STILL HAD NO IDEA THE FULL EXTENT OF THE DAMAGE BUT WE KNEW WE WERE GOING TO HAVE TO GUT IT ALL AND REPLACE, WHICH MEANT THE BELL WOULD NEED TO BE TAKEN DOWN. WE UNDERSTOOD THE BELL TO BE IN EXCESS OF 1000LBS AND WOULD NEED A CRANE FOR THAT!

WE BROUGHT IN OUR TRUSTED HERITAGE DESIGNATED ENGINEERS TO PROVIDE THE NECESSARY STRUCTURAL REPAIRS, AND THEY CAME THROUGH. WE WORKED WITH THE CITY AND HERITAGE COMMITTEES TO ENSURE COMPLETE RESPECT FOR THIS HISTORICAL BUILDING

Architectural blueprint of a church bell tower detailing structural notes, heritage masonry restoration, elevation views including east and north, tower bracing, and brick deterioration. Contains images of existing tower conditions and a site map.
Architectural blueprint for the replacement of a church bell tower, including detailed drawings of elevation views, cross-sections, framing, construction support columns, and cable connections.
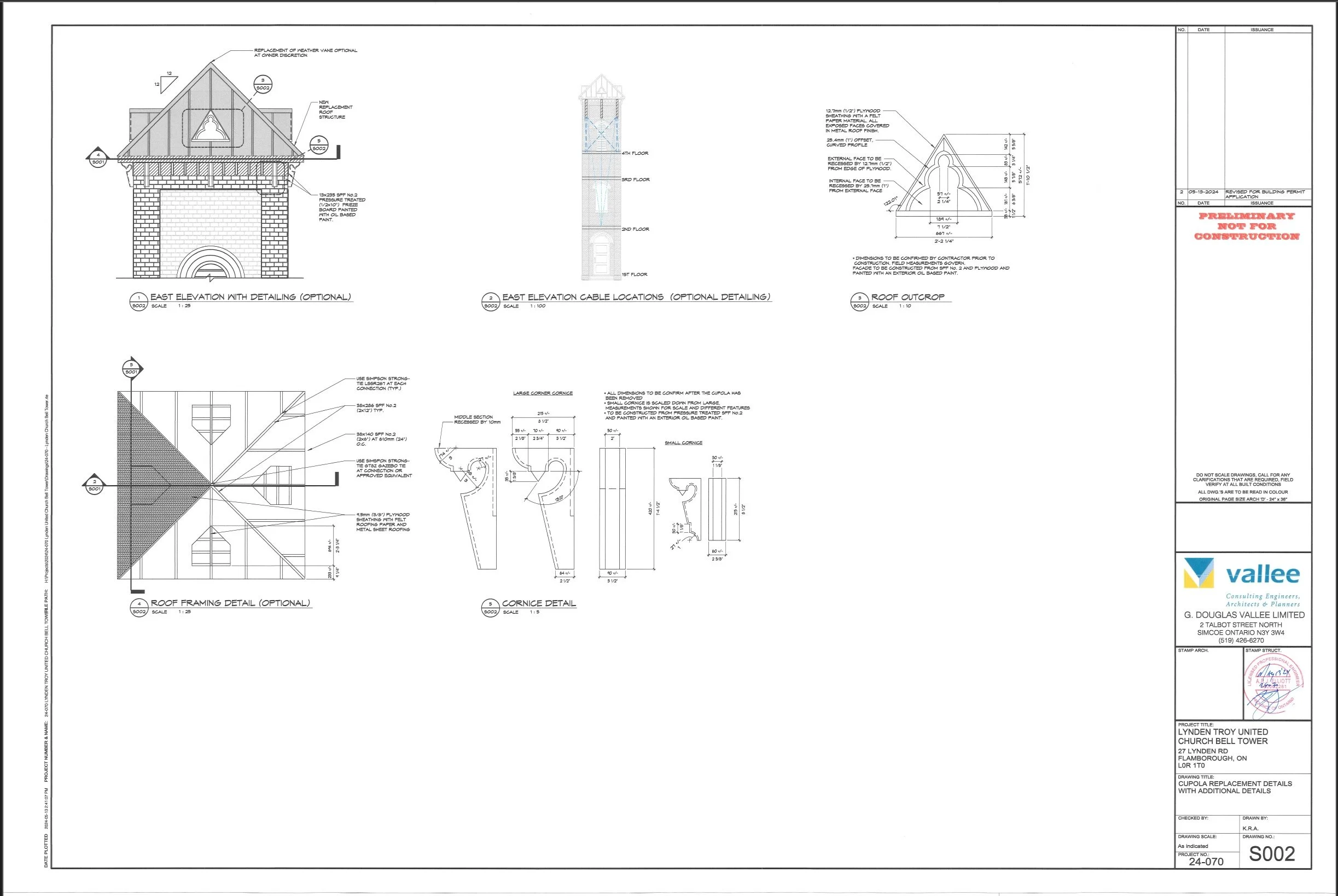
Architectural blueprint of the Lynodon Troy United Church Bell Tower with detailed elevations, roof framing, and decorative cupola details, marked with a red stamp saying 'PRELIMINARY NOT FOR CONSTRUCTION'.

AFTER SEVERAL MEETINGS, WALKTHROUGHS AND REVISIONS THE LYNDEN CHURCH TOWER REPAIRS BEGAN

A hand holding a yellow measuring tape against a brick wall, measuring approximately 36 inches.
Green door with a yellow and black 'KEEP OUT' sign and a building permit posted on it, surrounded by brick walls.
Close-up of a tape measure extending to about 4.5 inches placed against a brick wall.

WE BEGAN WITH THE BRICK REPAIRS TO THE BASE OF THE TOWER AND TOOK ADVANTAGE OF BUILDING THE ROOF ON THE GROUND; WE KNEW WE WOULD NEED A CRANE FOR THE BELL REMOVAL.

ONCE THE ROOF WAS READY TO LIFT INTO PLACE IT WAS TIME TO START DEMOLITION; WHILE WE MADE EVER EFFORT TO SALVAGE THE EXISTING CUPOLA AND BELFRY IT BECOME QUITE APPARENT THAT IT WAS GOING TO BE UN SALVAGABLE IN ONE PIECE, SO WE SAFELY REMOVED THE WOODEN STRUCTURE IN SECTIONS BEGINNING WITH THE ORIGINAL WEATHER VANE THAT STILL SPUN. WE WERE ABLE TO RETRIEVE THE OVER 8’ LONG WEATHERVANE COMPLETELY INTACT AND IT REMAINS WITH THE CHURCH

NEXT WE DISANTLED THE EXISTING CUPOLA AND BELFRY; WE MADE SURE TO KEEP ASIDE THE DORMERS AND CORNICE WORK FOR THE CHURCH FOR FUTURE RESTORATOIN.

WITH THE CUPOLA AND BELLFRY SUCCESSFULLY AND SAFELY REMOVED, THE BELL WAS READY FOR EXTRACTION. WE EXPLORED THE OPTIONS OF BRINGING IN A 50 TON CRANE FROM THE FRONT, BUT OVERHEAD HYDRO AND A SINGLE LANE WOULD LEAD TO ROAD CLOSURES AND HYDRO DISCONNECT, EXPLORED A 60 TON FROM THE REAR OF THE BUILDING BUT WOULD HAVE TO BRING THE 1000LB BELL OVER SOMEONES HOUSE FOR THAT, SO WE SETTLED ON A 90 TON FROM THE CONTROLLED SPACE OF THE PARKING LOT. AFTERALL IT HAD TO CARRY 1000LBS BELL FROM 135 FEET AWAY AND PUT THE NEW ROOF ON AFTER SO WE CALLED IN THE BIG GUNS, BETTER TO BE SAFE THAN SORRY!

ONCE WE HAD THE BELL DISCONNECTED FROM ITS MOUNT WE REMOVED THE MOUNT AND FRAME FROM THE ROOF AND BROUGHT IT TO THE GROUND.

WE SET THE BELL RIGHT BACK IN ITS CRADLE AND GAVE IT THE FIRST RING IN PROBABLY 20 YEARS.

WITH THE BELL OUT OF THE WAY IT WAS TIME TO PREPARE THE TOWER FOR THE NEW TOP CAP AND ROOF INSTALLTION. IT WAS DURING THIS PROCESS THAT WE REALIZED THE FULL EXTENT OF THE DAMAGES ONCE WE STRIPPED IT ALL BACK.

WE MANAGED TO GET THE TOWER PREPARED FOR THE NEW ROOF AND THE BELL REMOVED IN GOOD TIME, WE WERE ABLE TO GET THE ROOF INSTALLED THE SAME DAY AND THANKFULLY SAVED US AN ENTIRE DAY!

A crane lifting an object with a rope near the roof of a building, with snow on the ground and trees in the background.
Construction workers using a cherry picker lift to work on the top of a brick church tower during daytime with cloudy sky.
Exterior of a brick church with a green roof, a sidewalk, a decorative streetlamp, leafless trees, and patches of snow on the ground.
Upward view of a brick clock tower with arched windows and a green roof against a cloudy sky.
Intersection with stop sign, street signs for Lynden Road and Governors Road, a church, leafless trees, and a bright blue sky.

WITH THE BELL ON THE GROUND AND THE ROOF IN PLACE IT WAS TIME TO MOVE INSIDE AND TIE IN THE BOTTOM CHORDS PERMANENTEY AND REBUILD ALL THE FLOORS INSIDE AND, WHAT A BEAUTIFUL SIGHT IT WAS.

WITH THE UPPER TWO FLOORS REBUILT AND THE NEW ROOF TIED IN, IT WAS TIE TO START REPLACING ALL THE WINDOWS AND WINDOW SILLS. WE PULLED ALL THE ROTTER FRAMES AND SILLS AND PREPPED NEW SILLS WINDOW BLANKS.

WITH THE WINDOW BLANKS IN PLACE WE FINISHED THE VESTIBULE CEILING / SECOND FLOOR PLATFORM AND INSTALLED AIRCRAFT CABLING FROM THE ROOF BOTTOM CHORD LEDGER ANCHORS THOUGH ALL THE FLOORS TO THE 5 PLY BEAM ON THE FIRST FLOOR, THIS WAS QUITE FUN!

MOVING ALONG TO THE SOFFIT, FASCIA, GUTTER GUARD, ADDITIONAL BIRCK REPAIRS AND CUSTOM MADE ALUMINUM LOUVERS TO TIE IT ALL TOGETHER